Harley Davidson De Diagrama De Cableado

Harley Davidson De Diagrama De Cableado

  • Category : De Cableado
  • Post Date : January 22, 2026
Harley Davidson De Diagrama De Cableado 9 out of 10 based on 30 ratings. 50 user reviews.

Harley Davidson De Diagrama De Cableado

Cableado Estructurado Daniel Espinosa

Cableado Estructurado

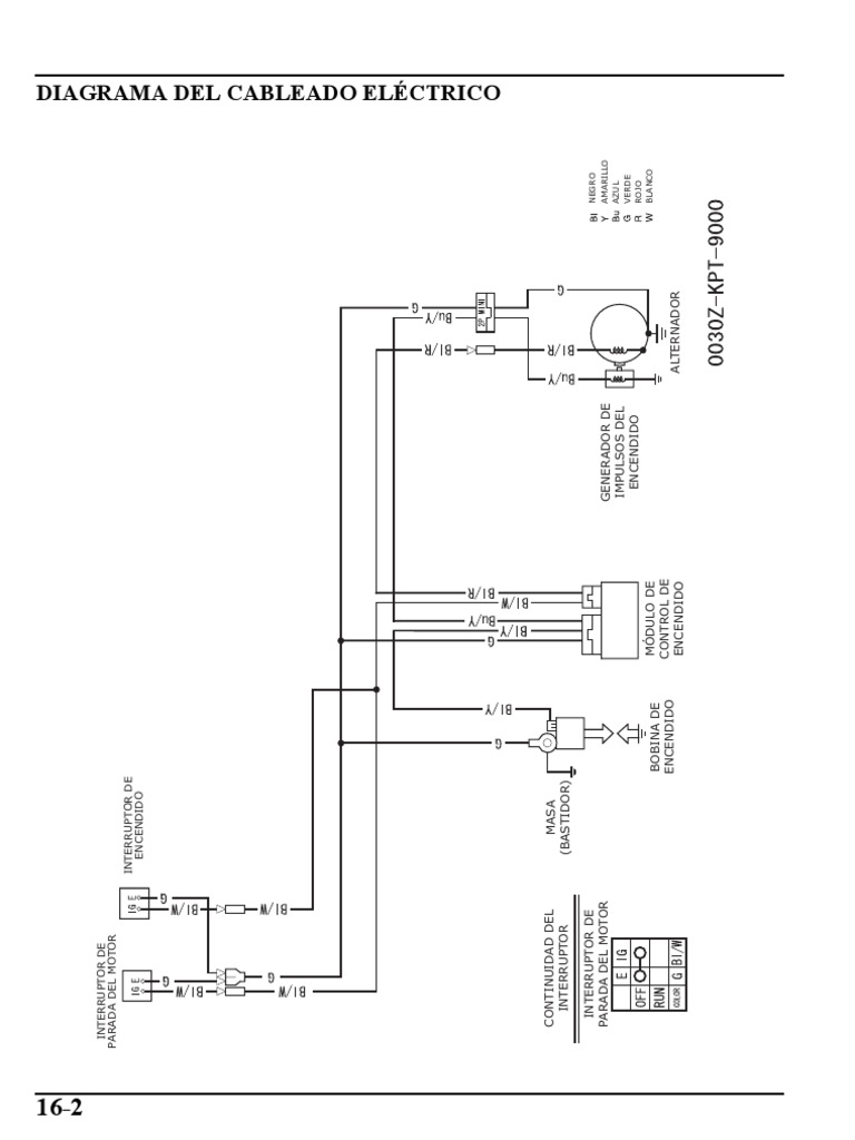
Diagrama Del Cableado El U00e9ctrico Moto Honda

U201ccableado Estructurado U201d Elementos De Un Sistema De

Cableado Estructurado

Proyecto Final De Redes 1

Diagrama De Cableado Sistema Elevalunas Electrico

Ford Courier Diagrama De Cableado Parte 5

22 Best Prueba Sensores Images On Pinterest

Diagrama Del Cableado Electrico Ventilador Mustang 3 8 95

Ford Courier Diagrama De Cableado Parte 6

Diagrama De Cableado Sistema Elevalunas Electrico

Cableado Estructurado

Manual Sistema Volkswagen Golf

Diagrama De Cableado Motor Hilux U2013 Ais3d

Diagrama De Cableado Motor U2013 Ais3d

Cableado Estructurado Taller

Cableado Estructurado

Diagrama De Cableado Del Motor Maxxforce Mwm

Cableado Electrico

Taller Cableado Estructurado

Introducci U00d3n Al Cableado Estructurado

Taller Cableado Estructurado

3 2 Estructura

Diagrama De Cableado Del Isb

Cableado Estructurado

Cableado Estructurado

Ford Courier Diagrama De Cableado Parte 1

Jonazsz Agosto 2011

Taller Cableado Y Estructurado

Ford Courier Diagrama De Cableado Parte 1

Cableado Estructurado

Diagramas De Cableado El U00e9ctrico

4 2pr U00e1ctica De Laboratorio Armado De Un Cable Cruzado

Laboratorio Cableado Estructurado U2013 Velezconde U0026 39 S Blog

3 2 Estructura

Manual Sistema Volkswagen Golf

Cableado Estructurado

Manual Sistema Volkswagen Golf

83 Best Cableado Estructurado Images On Pinterest

Diagrama De Cableado Para Pastillas En 2019

Diagrama De Cableado De Cummins N14 Celect Y Esquema Con

Diagramas Electricos Vocho

Sistema De Cableado Estructural

Manual Sistema Volkswagen Golf

Cableado Del Karmann Ghia

Cableado Estructurado

Espesor De Cables Para Alternador Burro Encendido Y Duda

Cableado Estructurado

Diagrama De Cableado Para 3 Humbuckers El Taller

Gestion De Redes De Datos

Diagramas De Cableado

Diagram Harley Davidson De Diagrama De Cableado

  • Download Harley Davidson De Diagrama De Cableado

    draw.io is free online diagram software for making flowcharts, process diagrams, org charts, UML, ER and network diagrams

    Open and edit diagrams online with Draw.io, a free diagram software supporting various formats and diagram types.

    Create a new diagram, or open an existing diagram in your new tab. To create a new diagram, enter a Diagram Name and click the location where you want to save the file.

    Create flowcharts and diagrams online with this easy to use software.

    Easily import diagrams from Lucidchart to diagrams.net or draw.io with this simple tool.

    Create and edit diagrams with draw.io, a free diagramming tool that integrates seamlessly with Office 365.

    Access and integrate Google Drive files with Draw.io using the Google Picker tool for seamless diagram creation.

    Clearing Cached version 29.3.2... OK Update Start App

    7.2 The Software will initiate transfers of data forming part of the Diagrams (“Diagram Data”) to services supplied by third parties when you expressly request conversion of Diagrams: a. to another supported file format; and b. to PDF format.

    Editing the diagram from page view may cause data loss. Please edit the Confluence page first and then edit the diagram. confConfigSpacePerm=Note: If you recently migrated from DC app, please check draw.io Configuration space permissions such that all users can read and only admins can write.

    3 way switch,3 way switch wiring,3 way switch wiring diagram pdf,3 way wiring diagram,3way switch wiring diagram,4 prong dryer outlet wiring diagram,4 prong trailer wiring diagram,6 way trailer wiring diagram,7 pin trailer wiring diagram with brakes,7 pin wiring diagram,alternator wiring diagram,amp wiring diagram,automotive lighting,cable harness,chevrolet,diagram,dodge,doorbell wiring diagram,ecobee wiring diagram,electric motor,electrical connector,electrical wiring,electrical wiring diagram,ford,fuse,honeywell thermostat wiring diagram,ignition system,kenwood car stereo wiring diagram,light switch wiring diagram,lighting,motor wiring diagram,nest doorbell wiring diagram,nest hello wiring diagram,nest labs,nest thermostat,nest thermostat wiring diagram,phone connector,pin,pioneer wiring diagram,plug wiring diagram,pump,radio,radio wiring diagram,relay,relay wiring diagram,resistor,rj45 wiring diagram,schematic,semi-trailer truck,sensor,seven pin trailer wiring diagram,speaker wiring diagram,starter wiring diagram,stereo wiring diagram,stereophonic sound,strat wiring diagram,switch,switch wiring diagram,telecaster wiring diagram,thermostat wiring,thermostat wiring diagram,trailer brake controller,trailer plug wiring diagram,trailer wiring diagram,user guide,wire,wire diagram,wiring diagram,wiring diagram 3 way switch,wiring harness

    close